Grundstück mit eingereichtem Projekt
Klosterneuburg/ Weidling

Objektbeschreibung:

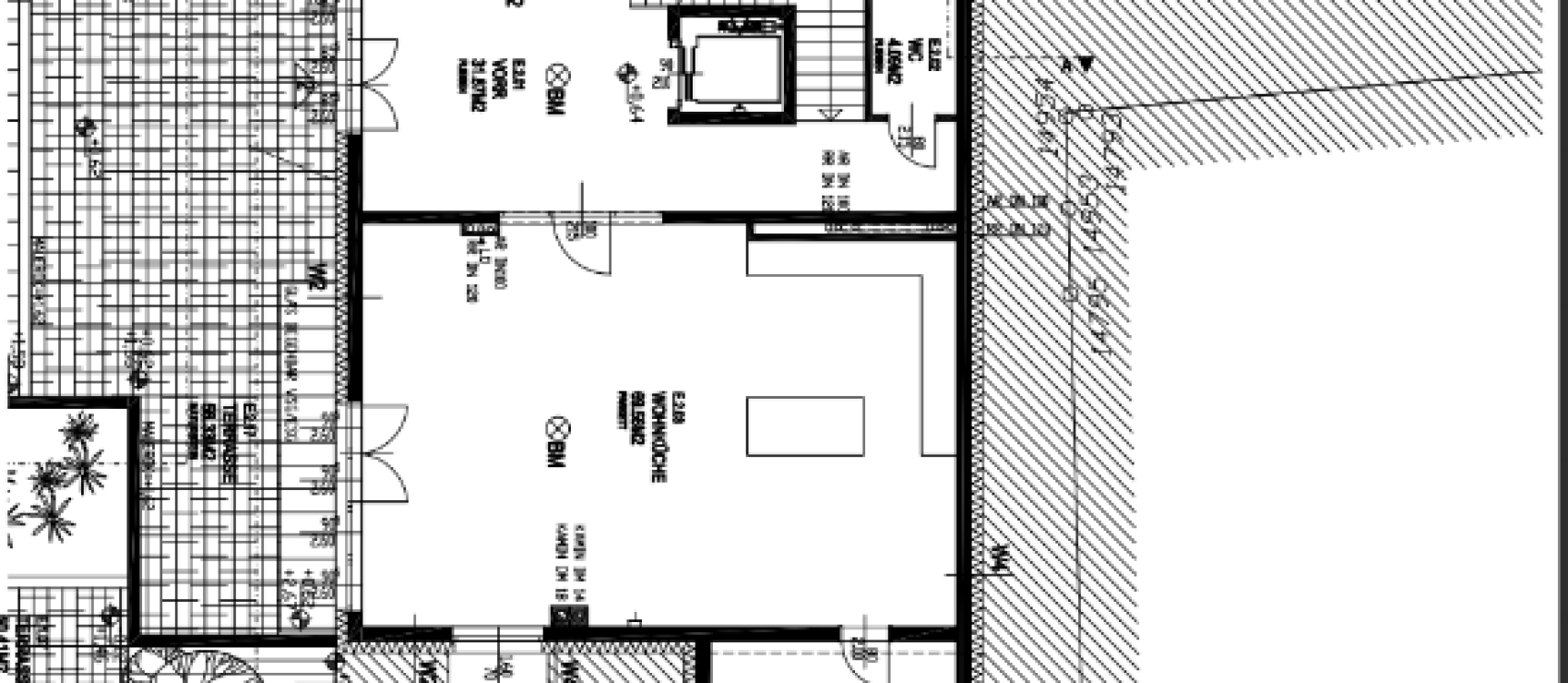
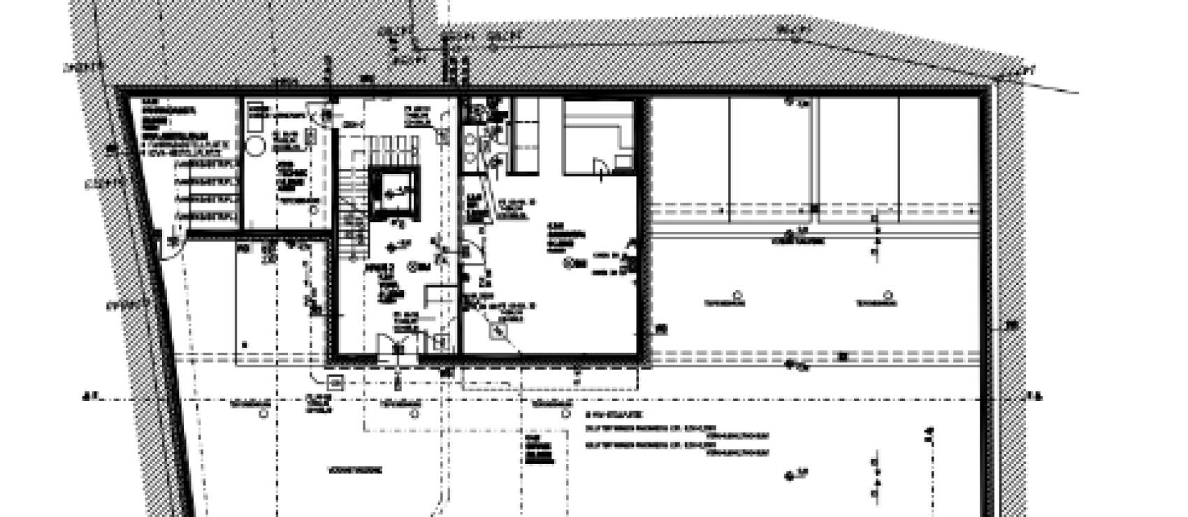
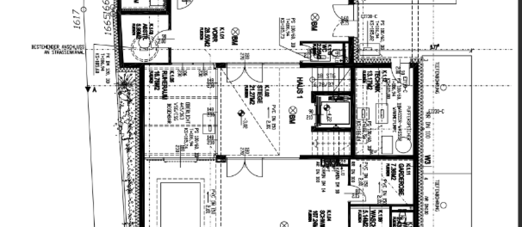
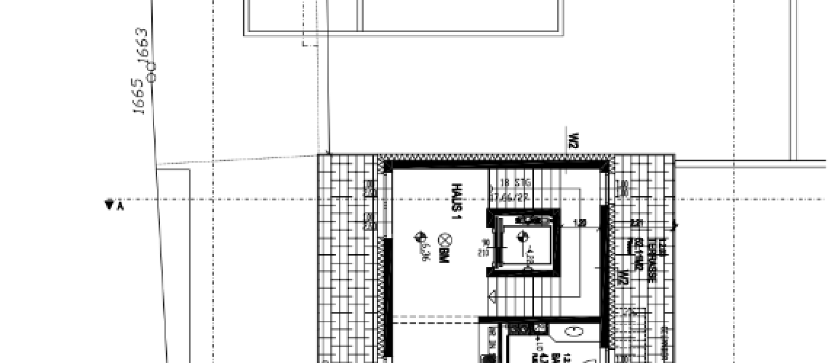
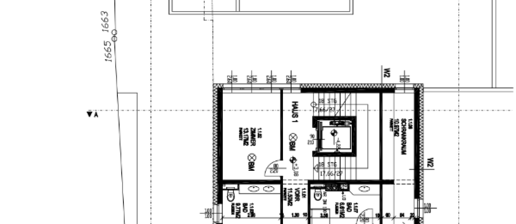
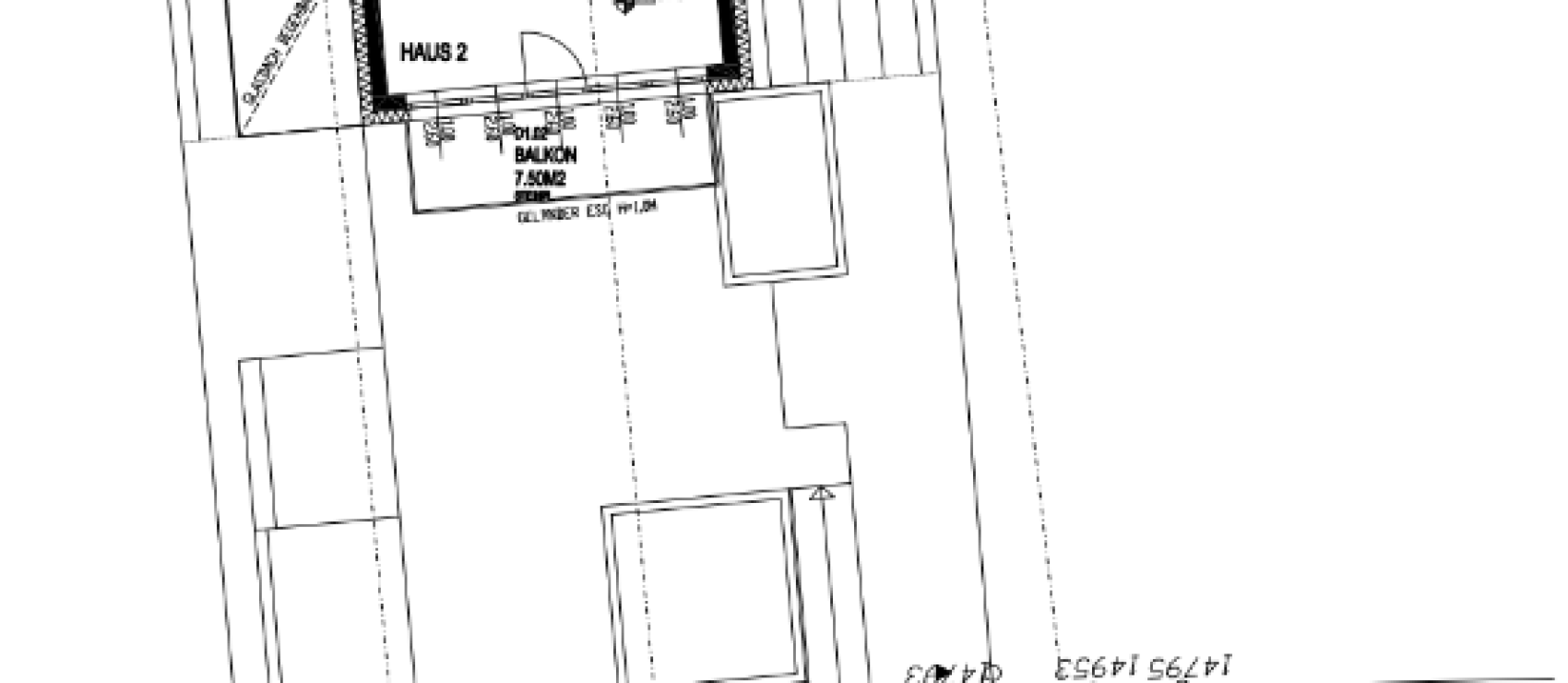
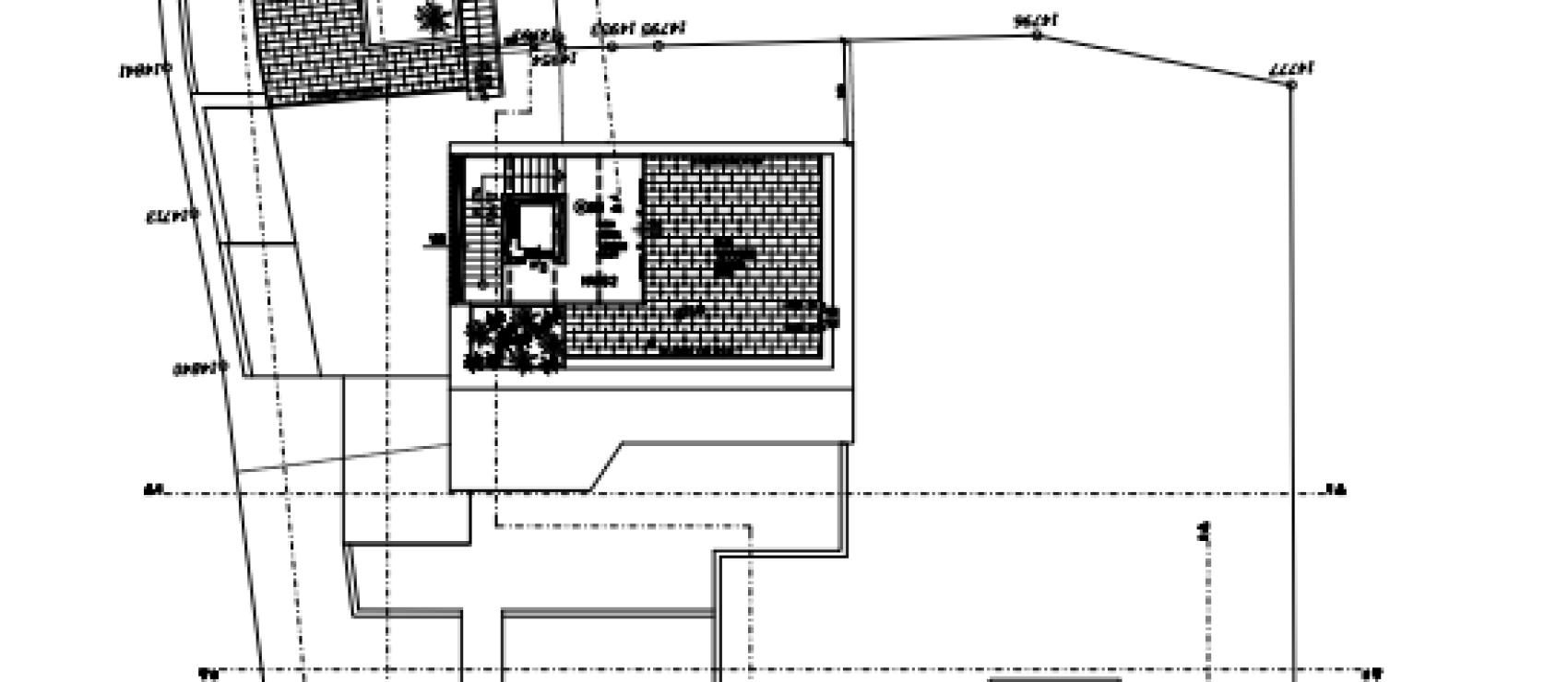
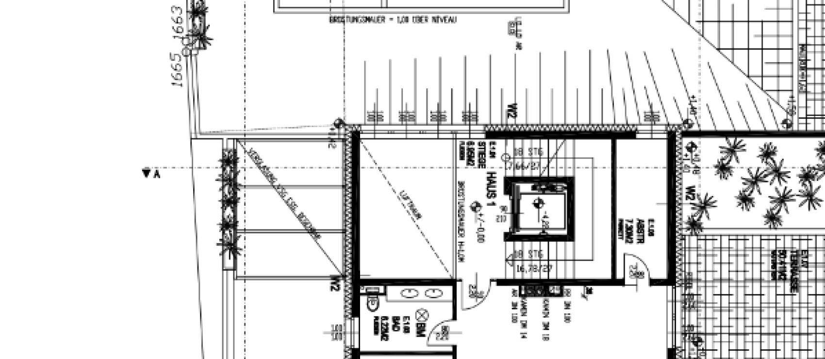
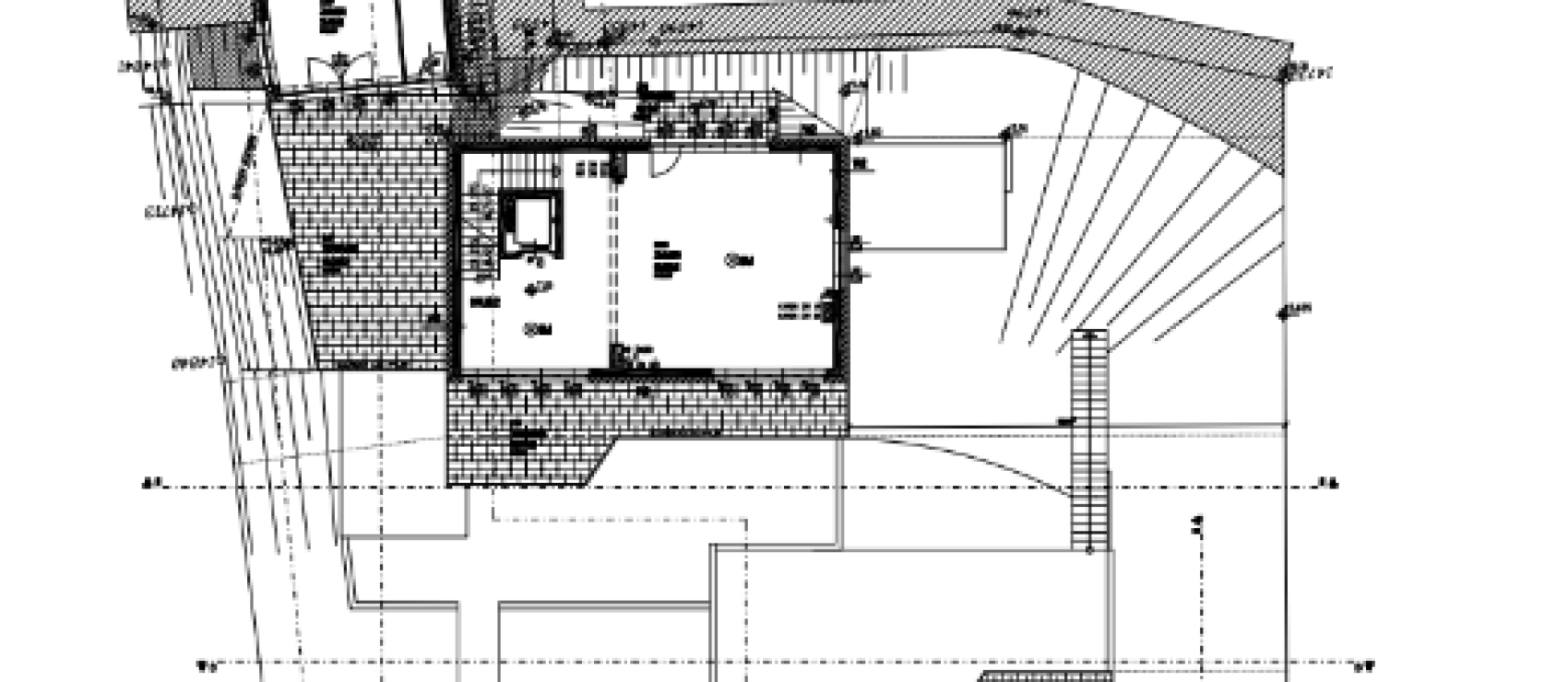
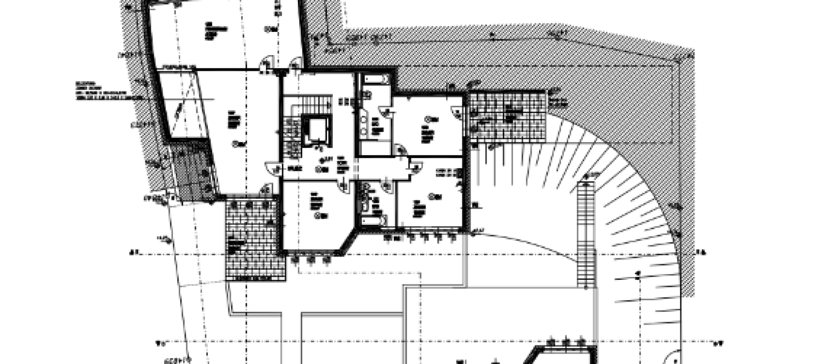
Ein 3.600 m2 Grundstück in Klosterneuburg/ Weidling multiple bespielbar mit enormem Potenzial als solide Wertanlage oder Entwicklungsprojekt. Sie bekommen eine fertige Planung für 2 Villen mit Sicherheitskonzept und großzügigen Garagenflächen, die in Wohnnutzung und Raumkonzepte übergehen.

Besonderheiten:

  • fertige Planung
  • Wertsteigerungspotenzial
  • Multiple Nutzungsoptionen
  • Wienerwald Lage mit Stadtnähe
Objekt:
Grundstück mit eingereichtem Projekt
Bundesland:
Niederösterreich
Gesamtnutzfläche:
3.600 m²
Adresse:
Klosterneuburg/ Weidling
Nutzbarkeit:
Wohn-/Bürozwecke
Aktueller Zustand:
vollständige Planung
Kontakt:

Sie haben Fragen bzw. sind an weiterführenden Informationen oder an einem persönlichen Termin interessiert? Wir freuen uns auf Ihre Kontaktaufnahme!

E: office@read-immo.at

M: +43 664 468 06 54
T: + 43 (0)1 512 32 66


READ Architektur. Architekt Geisseder.

Maßgeschneiderte Raumkonzepte, exklusive Immobilienentwicklungen und architektonische Beratung für Menschen mit Visionen und Haltung.
Ich gestalte Eigentum, Räume, Objekte – vom ersten Gedanken bis zum Lebensgefühl. In Wien. In Österreich. In Europa. Für Auftraggeber, die Präzision und Persönlichkeit schätzen.
Architektur ist kein Produkt, sondern ein Ausdruck.

Kontakt